Котел 0.23 МВт мазутный в Самарканде

Котел 0.23 МВт на мазуте
Котел КВа 0.23 МВт на мазуте
Чертеж котла 0.23 МВт на мазуте
Котел 0.23 МВт на мазуте чертеж
Котел 0.23 МВт мазутный
Мазутный котел 0.23 МВт
Мазутный котел 0.23 МВт промышленный
Промышленный мазутный котел 0.23 МВт
Котел 0.23 МВт отопительный на мазуте
Отопительный котел 0.23 МВт на мазуте
Котлы на мазуте 0.23 МВт водогрейные
Водогрейные котлы на мазуте 0.23 МВт
Котел 0.23 МВт на мазуте - производство
Производство котла КВа 0.23 МВт на мазуте
Котел 0.23 МВт на мазуте
Чертеж котла 0.23 МВт на мазуте
Котел 0.23 МВт мазутный
Мазутный котел 0.23 МВт промышленный
Котел 0.23 МВт отопительный на мазуте
Котлы на мазуте 0.23 МВт водогрейные
Котел 0.23 МВт на мазуте - производство
Цена
2 448 600 ₸
От 2 448 600 ₸ с доставкой до г.
  • Автоматическое регулирование температурных режимов
  • Надежная гладкотрубная конструкция исключает деформации и разрывы швов
  • Встроенная система взрывобезопасности
  • Низкие требования к качеству питательной воды
  • Модель работает с отечественными и импортными горелками

Технические характеристики котла 0.23 МВт мазутного

МаркаКотел 0.23 МВт мазутный
ВидВодогрейный
Тип отопительного котлаЖидкотопливный
БрендHEATEXPERT
ТипКотел КВа
Вид топкиМазутная горелка
Совместимое горелочное устройствоИмпортные горелки Gib Unigas, Oilon, Ecoflam и тд.
Максимальная тепловая мощность0.23 МВт
Максимальная тепловая мощность230 кВт
Максимальная тепловая мощность0.2 Гкал
Диапазон регулирования мощности40-100 %
ТопливоЖидкое, Мазут
Низшая теплота сгорания проектного топлива9260 кКал/кг
КПД котла на МАЗУТЕ, не менее91.6 %
Расход МАЗУТА среднечасовой за отопительный сезон13 кг/ч
Расход МАЗУТА при максимальной нагрузке котла24 кг/ч
Расход условного топлива32 кг/ч
Минимальная температура воды на входе в котел55 °С
Максимальная температура воды на выходе из котла115 °С
Давление воды, не более0.3-0.6 (3-6) МПа (кгс/см²)
Номинальный расход теплоносителя8 м³/ч
Расход теплоносителя через котел min-max6-10 м³/ч
Гидравлическое сопротивление при номинальном расходене более 0.07 (0.7) МПа (кгс/см²)
Аэродинамическое сопротивление220 (22) Па (мм. вод. ст.)
Давление в топочной камере270 (27) Па (мм. вод. ст.)
Объем уходящих газов450 м³/ч
Температура уходящих газов177 °С
ТягаПринудительная
Водяной объем котла250 л
Объем топочной камеры0.46 м³
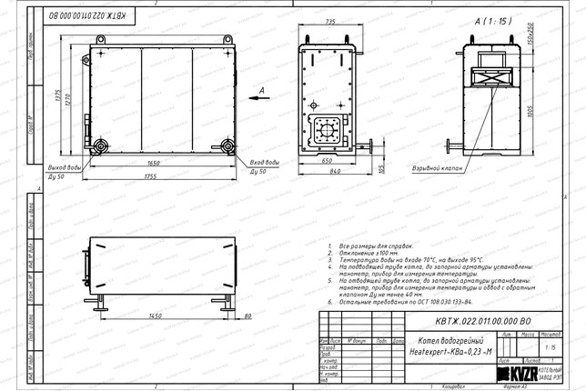
Размер топочной камеры, длина*ширина*высота1450х450х700 мм
Присоединительные размеры по водяному тракту50 Ду
Присоединительные размеры газохода уходящих газов, ширина*высота / сечение250х150 / 0.04 мм/м²
Габаритные размеры котла, длина*ширина*высота1880х840х1370 мм
Масса650 кг
Конструкция котлаВодотрубная
Количество контуровОдноконтурный
РазмещениеНапольный
Тип камеры сгоранияЗакрытый
УправлениеЭлектронное
Принцип работы газового котлаКонвекционный
ЭнергонезависимыйНет
Тип питанияТрехфазное
Встроенный циркуляционный насосНет
Встроенный расширительный бакНет
ЭнергоэффективностьВысокая
Размеры корпуса котла, длина*ширина*высота1650х650х1270 мм
Отапливаемая площадьот 1300 до 2500 м²
Отапливаемый объемот 4000 до 7500 м³

Водогрейный мазутный котел 0.23 МВт в Самарканде

Водогрейный мазутный котел КВа 0.23 предназначен для установки в промышленных котельных с целью отопления и горячего водоснабжения производственных помещений и жилых зданий. Может работать с широким рядом горелочных устройств как иностранного, так и отечественного производства. Максимальная температура нагрева воды 115 °С, давление - от 0,3 до 0,6 МПа. Используемое топливо – мазут.

Мазутный котел 0.23 МВт устройство

Промышленный стальной жидкотопливный котел 0,23 МВт на мазуте - напольный, гладкотрубный, выполнен в горизонтальном расположении. Газоплотная топка расположена в передней части теплоагрегата. В верхней части котельного блока находится двухходовой конвективный пакет. Фронтовая плита может быть выполнена под конкретный тип горелки. Снаружи котлоагрегат обшивается стальными листами с теплоизоляцией.

Конструкция трубной системы обеспечивает компактность котла. Гладкотрубная поверхность нагрева исключает деформации и разрывы швов. Стены газоплотной топки представляют собой охлаждаемые трубы с вваренной между ними стальной полосой. В задней зоне камеры горения крепится взрывной клапан. При повышении давления в топочной камере, клапан открывается и спускает давление. Конвективные пакеты размещены в шахматном порядке друг напротив друга. Благодаря этому поверхность нагрева имеет большую полезную площадь и максимальный коэффициент передачи тепла. Дымовые газы успевают охладиться к выходу из котлоагрегата до температуры 200-180 °С, что снижает теплопотери.

Благодаря гладкотрубной системе, небольшому объему циркулирующей воды, наличию взрывного клапана – водотрубный котел 0.23 МВт мазут безопасен, нет риска взрыва в аварийной ситуации.

За счет изоляции трубной системы котла плитами ПТЭ и обшивке стальными листами температура наружных стенок не превышает 30 °С.

Гидравлическая схема котла

Стационарный отопительный водяной котел 0 23 МВт на мазуте и отработке не требователен к качеству питательной воды.

Высокая скорость движения воды турбулизирует поток и не допускает отложение солей и образование накипи на стенках труб. Многочисленные перегородки в коллекторах распределяют поток теплоносителя. В результате чего в трубной системе исключаются застойные зоны, тепловые напряжения и локальный перегрев.

Принцип работы котла 0.23 МВт на мазуте

Горелка обеспечивает смешивание топлива с воздухом, поступление газовоздушной смеси в топку и ее горение. При помощи горелки поддерживается необходимая температура в котлоагрегате, но не более 115 °С. При достижении предельной температуры воды горелка автоматически отключается и включается.

Тепло образующееся от горения топлива поступает в конвективную часть, нагревая теплоноситель.

Конструкция топочной камеры и ее большой объем позволяют подключать горелки большинства ведущих российских и иностранных производителей, в том числе ILKA и другие. Наш завод также производит модели котлов для работы на российских горелках РГМГ, ГБЛ, ГМ, ГМГ, АПНД.

Комплект поставки

Цена на напольные мазутные котлы КВа 0,23 МВт для отопления включает базовую комплектацию. В состав базовой комплектации входит: затворы, предохранительные клапаны, вентили, манометры, термометры, трехходовые краны.

Дополнительная комплектация

  • автоматика – обеспечивает управление и безопасность котла;
  • горелка – обеспечивает смешивание газа и воздуха, подачу газовоздушной смеси к фронту горения, регулирование процесса горения;
  • циркуляционный насос - обеспечивает циркуляцию воды в котлоагрегате;
  • подпиточный насос – позволяет пополнять объем теплоносителя в контуре.

Купить мазутный котел 0.23 МВт

Для того, что бы купить котел 0.23 МВт на мазуте в Самарканде вы можете сделать заявку по телефону +7-7172-69-59-73, либо оформить заявку онлайн. Менеджеры дадут консультацию по подбору вспомогательного оборудования для выбранных вами моделей и рассчитают стоимость доставки. Транспортирование котлоагрегата и вспомогательного оборудования до объекта осуществляется автомобильным транспортом.

Комплект поставки котла 0.23 МВт мазутного

Затвор ДУ 50
Затвор Ду 50
2 штуки
Клапан обратный
Клапан обратный
1 штука
Манометр МП 160
Манометр МП 160
2 штуки
Кран трехходовой ДУ 15
Кран Ду 15
2 штуки
Термометр ТТЖО
Термометр ТТЖО
2 штуки
Оправа термометра ОПТ
Оправа ОПТ
2 штуки
Шаровый кран
Кран шаровый
4 штуки

Вспомогательное оборудование для работы котла 0.23 МВт мазутного

Горелка СибСтронг мазутная
Цена по запросу
Насос К консольный
К 50-32-125
Цена 283 656 тг.
Насос К консольный
К 50-32-125а
Цена 279 204 тг.
Насос TD
Насос TD32-33G2 (3 кВт)
Цена 788 640 тг.
Насос CHL
Насос CHL2-40 (0.55 кВт)
Цена 368 880 тг.

Аналоги котла 0.23 МВт мазутного

Котел 0.15 МВт на мазуте
Котел 0.15 МВт мазутный
Вид топкиМазутная горелка
Максимальная тепловая мощность, МВт0.15
ТопливоМазут, Жидкое
Отапливаемая площадь, м²от 900 до 1650
Цена 2 353 200 тг.
Дизельный котел КВа 0.23 МВт
Котел 0.23 МВт дизельный
Вид топкиДизельная горелка
Максимальная тепловая мощность, МВт0.23
ТопливоЖидкое, Дизель
Отапливаемая площадь, м²от 1300 до 2500
Цена 2 397 720 тг.
Газовый котел КВа 0.23 МВт
Котел 0.23 МВт газовый
Вид топкиГазовая горелка
Максимальная тепловая мощность, МВт0.23
ТопливоГаз
Отапливаемая площадь, м²от 1300 до 2500
Цена 2 397 720 тг.
Котел 0.3 МВт на мазуте
Котел 0.3 МВт мазутный
Вид топкиМазутная горелка
Максимальная тепловая мощность, МВт0.3
ТопливоМазут, Жидкое
Отапливаемая площадь, м²от 2300 до 3300
Цена 2 512 200 тг.

Собственное производство

Котельный завод производит
  • Паровые котлы от 300 кг до 2.5 тонны пара в час
  • Промышленные водогрейные котлы от 150 КВт до 4 МВт на всех видах топлива
  • Механические топки ТШПМ, шурующая планка и ТЛПХ, ленточное полотно прямого хода
  • Циклоны для очистки воздуха и дымовых газов для производств и промышленных отраслей
  • Транспортеры и системы топливоподачи и шлакоудаления
Подробнее о производстве
Собственное производство
Смотреть видео
с производства